SKYDINIAI - KARKASINIAI NAMAI


Skydinių - karkasinių namų gamyba pripažinta viena iš ekonomiškiausių ir ekologiškiausių sprendimų, pasižyminti mažais eksploatacijos kaštais. Šiandien jau ir Lietuvoje sparčiai populiarėjantis pasirinkimas ne tik kaip vasarnamio, bet ir kaip nuolatinio gyvenamojo namo.
Skydiniai - karkasiniai namai vertinami dėl jų patvarumo, ilgaamžiškumo, patikimumo, greitų terminų, patrauklios kainos.
Skydinio - karkasinio namo gamyba ir surinkimas iki vidaus apdailos darbų trunka apie 2 - 3 mėnesius. Skydinius - karkasinius namus gaminti bei surinkti galima bet kokiu metų laikotarpiu. Šio tipo namams nereikia masyvių pamatų, o tai irgi sutrumpina statybos laiką bei sumažina statybos kaštus.
Skydiniai - karkasiniai namai turi plačias architektūrines galimybes. Todėl galima įgyvendinti įvairius projektus pagal kiekvieno užmojus, skonį bei galimybes. Šiuos namus galima dekuoruoti įvairiomis medžiagomis tiek klinkeriu, tiek tinku ar akmenimis, bei medžio dailylentėmis.
SKYDINIO- KARKASINIO NAMO PROJEKTO ĮGYVENDINIMAS
Atvykstate pas mus į svečius su savo svajonėmis, vizijomis turėti nuosavus namus. Mes, išklausę jūsų poreikius, nuomones, svajones, padedame jums pasirinkti tinkamą projektą.
Supažindiname jus su gaminamo namo konstrukcijomis, medžiagomis, gamybos procesu.
Suderinę galutinį namo projektą, paskaičiuojame jums kainą bei atlikimo terminus.
Gavus jūsų sutikimą su galutine kaina ir pasirašius sutartį, projektas keliauja į gamybos procesą.
Pagaminti karkasai keliauja į statybų aikštelę, kurioje mes dažniausiai užtrunkame apie 2-3 savaites.
Tada jums belieka atlikti vidaus bei išorės apdailos darbus. Jūsų patogumui ir jums pageidaujant, mes atliekame ir šiuos darbus. Savo komandoje turime interjero dizainerę, kuri sukurs jums jaukių namų interjerą.
Užbaigus visus darbus, įteikiame raktus nuo jūsų
SVAJONIŲ NAMO!
Skydinio - karkasinio namo kaina priklauso nuo pasirinktų medžiagų. Preliminariai kaina svyruoja nuo 800 - 1500 € už kvadratinį metrą, todėl galutinę projekto kainą galima įvardinti tik viską pasirinkus.










Vienas iš mūsų paskutinių įgyvendintų projektų sulaukiantis didelio susidomėjimo - skydinis vieno aukšto gyvenamasis namas su mansarda ir terasa " SKANDINAVIJA" 66m2 .
Skydinių - karkasinių namų konstrukcijos susideda iš medinio karkaso. Vidinė dalis užpildoma akmens vata, kuri leidžia pasiekti reikiamą šiluminę varžą. Pagal šias naujausias technologijas, su aukščiausios kokybės medžiagomis pastatyti namai, turi aukštas šilumos bei energijos taupymo charakteristikas.








Pakeliaukite kartu šiame video, po "Skandinavija" užbaigtą projektą.

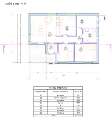
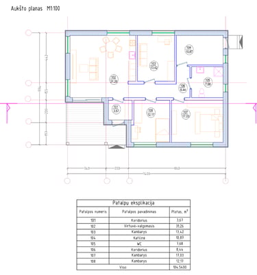
Vieno aukšto skydinis karkasinis namas – 104,5 m² (A++ klasė)










Šis vieno aukšto A++ energinės klasės skydinis karkasinis namas – puikus pavyzdys, kaip šiuolaikinės technologijos gali derėti su natūraliu jaukumu ir funkcionalumu.
Tai modernus, energiškai efektyvus ir estetiškai išbaigtas būstas, sukurtas patogiam gyvenimui šiuolaikinei šeimai.
Platesnė informacija:
Tipas: skydinis karkasinis namas
Bendras plotas: 104,5 m²
Energijos klasė: A++
Apdaila: fibrocementinė danga Cedral Classic
Stogo danga: dažyta skarda pagal RAL paletę
Šildymo sistema: oras–vanduo šilumos siurblys
Vėdinimas: rekuperacijos sistema
Įrengimas: pilnai įrengtas iki raktų
Išskirtinumai:
Efektyvus ir ergonomiškas,
Išplanavimas be nereikalingų erdvių
Dideli vitrininiai langai, užtikrinantys šviesą ir ryšį su terasa
A++ klasės sprendimai garantuoja itin mažas energijos sąnaudas
Naudotos tik aukštos kokybės, ilgaamžės medžiagos
Visi darbai – nuo pamatų iki apdailos – atlikti mūsų komandos
Atlikti darbai:
Gręžtinių polių ir rostverko pamatų įrengimas
Karkaso ir skydų gamyba bei montavimas
Stogo ir fasado įrengimas (Cedral Classic, RAL skarda)
Langų ir durų montavimas
Šildymo bei vėdinimo sistemų įrengimas (oras–vanduo, rekuperacija)
Vidaus apdaila ir pilnas įrengimas iki raktų
Rezultatas – šviesus, jaukus ir energiškai taupus namas, kuriame dera kokybė, funkcionalumas ir šiuolaikinė architektūra.


TURITE KLAUSIMŲ? SUSISIEKITE SU MUMIS
KONTAKTAI
ADRESAS
Miškinių vs.6, Ramygalos sen.
Panevėžio raj., Lietuva
©2025 UAB Litvudas. Visos teisės saugomos | Privatumo politika

