MODULINIAI NAMAI


Moduliniai namai dažnai laikomi moderni, greita ir efektyvi būsto statybos alternatyva tradiciniam namui. Moduliniai namai gali būti pritaikomi įvairioms paskirtims - vasarnamiai, sodo nameliai, nuomai skirtas būstas gamtoje ar nuolatiniam gyvenimui nedidelėms šeimoms skirtas būstas.
Moduliniai namai gaminami iš modulių, kurie surenkami gamybos ceche ir pagamintas namas pristatomas į jūsų skypą. Ši technologija yra paprasta, ekonomiška ir draugiška gamtai.
Atsižvelgiant į jūsų poreikius modulinis namelis gali būti apšiltintas ir pritaikytas gyventi žiemą. Juose gali būti įrengiami visi reikiami patogumai bei komunikacijos.
Modulinio namo gamyba užtrunka apie 2-3 mėn.
Modulinių namų kaina priklauso nuo jūsų pasirinkto projekto bei medžiagų.






Modulinė pirtelė " Forest" 8x3,4m
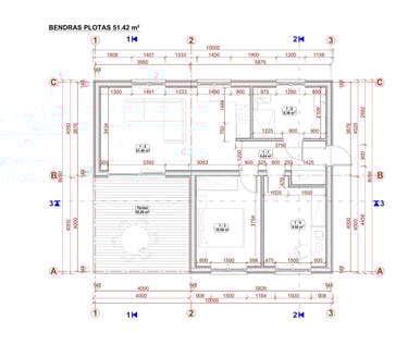
Dviejų modulių namas DREAM 52 m2


Ieškote modernaus, kompaktiško ir greitai pastatomo būsto?
Modulinis namas „Dream“ – tai funkcionalus ir pilnai įrengtas sprendimas tiems, kurie nori gyventi patogiai be ilgo statybų proceso.
Tai vienas iš populiariausių pasirinkimų tarp klientų, ieškančių modulinio namo Lietuvoje, kuris derina kokybę, estetiką ir prieinamą kainą.
Šis ~52 m² modulinis namas yra puikus pasirinkimas ieškantiems mažo namo su visais patogumais:
Svetainė su virtuve
2 miegamieji kambariai
Vonios kambarys
Galimybė terasai įrengti
Tai idealus sprendimas tiek nuolatiniam gyvenimui, tiek poilsiui.
📞 Susisiekite dabar ir sužinokite daugiau apie DREAM modulinį namą!
Kaina nuo 52 400 EUR + PVM su pilna apdaila






















Modulinis namas “White” 42m2


Vienas naujausių mūsų projektų – modulinis karkasinis namas „White“. Tai modernus, šviesus ir itin jaukus namas, kuriame natūralus medis dera su minimalistiniu dizainu ir šiuolaikiniais techniniais sprendimais. Namas pritaikytas tiek nuolatiniam gyvenimui, tiek poilsiui gamtos apsuptyje.
Išorė
Šiam namui pasirinkome vertikalią medinę apdailą, pabrėžiančią natūralumą ir lengvumą. Dideli vitrininiai mediniai langai leidžia į vidų patekti daug dienos šviesos, o šviesiai žalios durys suteikia pastatui išskirtinumo. Dvišlaitis „Classic“ tipo skardinis stogas užtikrina ilgaamžiškumą ir subtilią estetiką.
Vidaus erdvė
Interjere vyrauja šviesios balintos medinės dailylentės ir tamsaus riešuto parketas, sukuriantys jaukų, harmoningą derinį. Aukštos lubos su matomomis sijomis suteikia erdvės pojūtį, o krosnelė viduryje namo sukuria ypatingą šilumos atmosferą. Vonios kambarys dekoruotas raštinėmis plytelėmis, išlaikant stiliaus vientisumą ir subtilumą. Vonios zonoje įrengtos šildomos grindys, kurios užtikrina dar didesnį komfortą šaltuoju metų laiku.
Techniniai duomenys:
• Vidaus plotas: 42 m²
• Išmatavimai: 10 × 5,3 m
• Konstrukcija: medinis karkasas (45×145 mm + 50 mm izoliacija)
• Apdaila: impregnuota ir dažyta mediena
• Grindys: parketas
• Langai ir durys: mediniai, su stiklo paketais
• Stogas: skarda „Classic“, su lietaus sistema
• Pamatas: betoniniai poliai
• Šildymas: oras–oras sistema + krosnelė
• Vonios kambarys: šildomos grindys
Kaina: Nuo 52 000 € + PVM.
Kurdami šį namą siekėme sujungti natūralumą, kokybę ir funkcionalumą. Rezultatas – jaukus, šiltas ir šviesus modulinis namas, kuriame gera būti kasdien.
„White“ – vienas iš mūsų mylimiausių projektų. Tai namas, kuriame tikrai gera gyventi.























Modulinė pirtelė" Relax" 3,5x7m
Modulinės pirtelės" Relax" gamybos procesas


Kokybiška modulinė pirtis "Relax", pilnai įrengta:
Grindys apšiltintos 150mm + 12mm plaušo pl.
Stogas 200mm.Ruukki ( classic)
Nuo graužikų iš apačios pilnu perimetru sudėtas karšto cinkavimo tinkliukas.
Vonios kambarys išklotas plytelėmis, grindys šildomos.
Saunos įranga - dailylentės - liepa, gultai - termo Abachi, pirties krosnelė Ermak 12
Priešpirčio įranga - vinilinės grindys, medinės dailylentės, kondicionierius, apšvietimas ( halogenai)
Modulinė pirtis “Comfort” su terasa 28m2










Bendras plotas: 28,09 m2
Svetainė: 17,07 m2
Pirtis: 6,70 m2
Vonios kambarys: 4,32 m2
Terasa: 20,20 m2
📞 Susisiekite dabar ir mes padėsime rasti geriausią sprendimą, pritaikytą būtent Jūsų poreikiams ir gyvenimo stiliui.
Kaina nuo 43 000 EUR +PVM
Modulinė pirtis “Elite” 5x7,7 m
















Bendras plotas: 28 m2
Svetainė: 17,07 m2
Pirtis: 6,70 m2
Vonios kambarys: 4,32 m2
Terasa: 20,20 m2
Kiekviena pirtis unikali, todėl ir jos kaina formuojama individualiai. Galutinė suma priklauso nuo Jūsų pasirinktų medžiagų, dizaino sprendimų bei techninių detalių. Preliminariai kaina svyruoja nuo 800 iki 1500 € už kvadratinį metrą, tačiau tikslią projekto kainą galėsime įvardinti tik suderinus visus Jūsų pageidavimus.
📞 Susisiekite dabar ir mes padėsime rasti geriausią sprendimą, pritaikytą būtent Jūsų poreikiams ir gyvenimo stiliui.
TURITE KLAUSIMŲ?
SUSISIEKITE SU MUMIS
KONTAKTAI
ADRESAS
Miškinių vs.6, Ramygalos sen.
Panevėžio raj., Lietuva
©2025 UAB Litvudas. Visos teisės saugomos | Privatumo politika

